
الخريطة
اطلب فيديو


5
شقة ارضى منخفض للبيع في النرجس عمارات قريبة جدًا من مسجد فاطمة الشربتلي ومحور جمال عبد الناصر
شقة بيزمنت للبيع في النرجس عمارات
قريبة جدًا من مسجد فاطمة الشربتلي
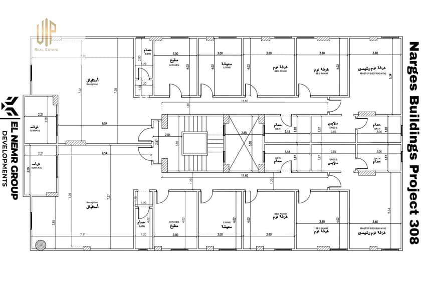
مساحة الشقة 240 متر
مساحة الحديقة 150 متر
البيزمنت مهوّى بالكامل
التقسيم الداخلي:
3 غرف نوم (منهم غرفة ماستر بدريسينج)
2 حمام
مطبخ
ليفنج منفصل
ريسيبشن 4 قطع
موقع مميز جدًا في قلب النرجس عمارات وقريب من جميع الخدمات
السعر : 3000000
أحمد صقر
قريبة جدًا من مسجد فاطمة الشربتلي
مساحة الشقة 240 متر
مساحة الحديقة 150 متر
البيزمنت مهوّى بالكامل
التقسيم الداخلي:
3 غرف نوم (منهم غرفة ماستر بدريسينج)
2 حمام
مطبخ
ليفنج منفصل
ريسيبشن 4 قطع
موقع مميز جدًا في قلب النرجس عمارات وقريب من جميع الخدمات
السعر : 3000000
أحمد صقر
معلومات عن العقار
- نوع العقارشقة
- نوع العرضللبيع
- الرقم المرجعيبيوت - 10470
- حالة البناءجاهز
- التأثيثغير المفروشة
- نُشِر في4 ديسمبر 2025
- الملكية العقاريةاعادة البيع
المزايا والخدمات
شرفة أو تراس
عداد كهرباء
عداد مياه
غاز طبيعي
+ 4 مزايا وخدمات
البحث الشائع
حاسبة التمويل العقاري
الموقع والأماكن القريبة
الموقع
المؤسسات التعليمية
المطاعم
المستشفيات
المتنزهات







