

الخريطة
اطلب فيديو





15
الدفعة المقدّمة: 2,563,000 ج.م
كومباوند هايد بارك القاهرة الجديدة، التجمع الخامس، القاهرة الجديدة، القاهرة
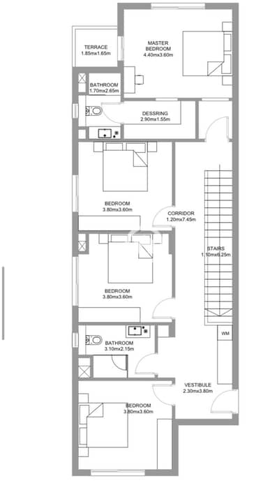
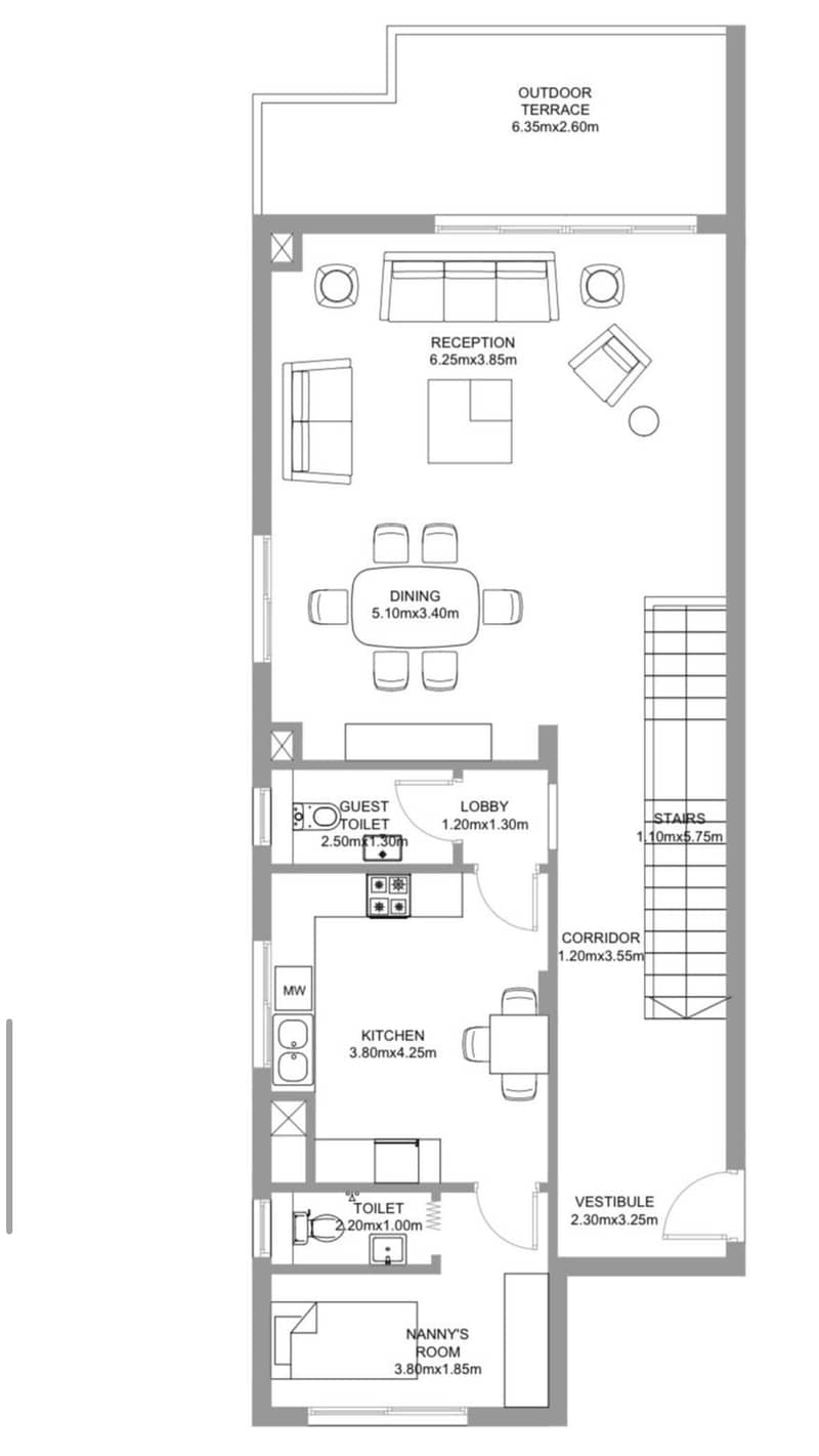
5 غرف
4 حمامات
264 متر مربع
هايد بارك القاهره الجديده التجمع الخامس دايركت علي طريق ال90 الجنوبي وطريق الدائري الأوسطي بجوار كمبوند دوه القرز وامام كمبوند سولانا أيست لنجيب ساوير
كمبوند هايد بارك القاهره الجديده ف التجمع الخامس
دوبليكس
استلام فوري جاهز
طوب أحمر
مساحته 264 متر
٥ غرف
٤ حمام
مطبخ
ريسبشن ٣ قطع
2 تراث كبير (بلكونه)
دور تاني وتالت
دوبليكس
استلام فوري جاهز
طوب أحمر
مساحته 264 متر
٥ غرف
٤ حمام
مطبخ
ريسبشن ٣ قطع
2 تراث كبير (بلكونه)
دور تاني وتالت
معلومات عن العقار
- نوع العقاردوبلكس
- نوع العرضللبيع
- الرقم المرجعيبيوت - 5001646-LJBpDP
- حالة البناءجاهز
- التأثيثغير المفروشة
- نُشِر في21 يناير 2026
- الملكية العقاريةأول سكن
المزايا والخدمات
شرفة أو تراس
غرفة خدم
مسبح
الأرضيات
+ 26 مزايا وخدمات
البحث الشائع
حاسبة التمويل العقاري
الموقع والأماكن القريبة
الموقع
المؤسسات التعليمية
المطاعم
المستشفيات
المتنزهات

















