الصفحة الرئيسيةشقق للبيع في القاهرةشقق للبيع في القاهرة الجديدةشقق للبيع في التجمع الخامسشقق للبيع في بيت الوطنMustafa-Baitwatan-146 - بيوت

قيد الإنشاء
الخريطة
اطلب فيديو


5
الدفعة المقدّمة: 1,356,250 ج.م
بيت الوطن، التجمع الخامس، القاهرة الجديدة، القاهرة
3 غرف
2 حمامات
211 متر مربع
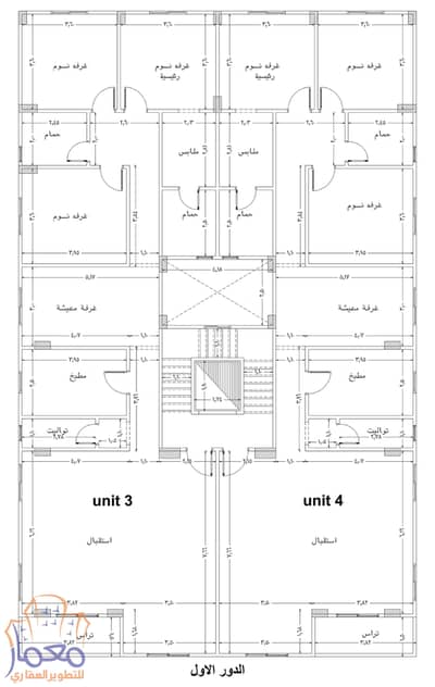
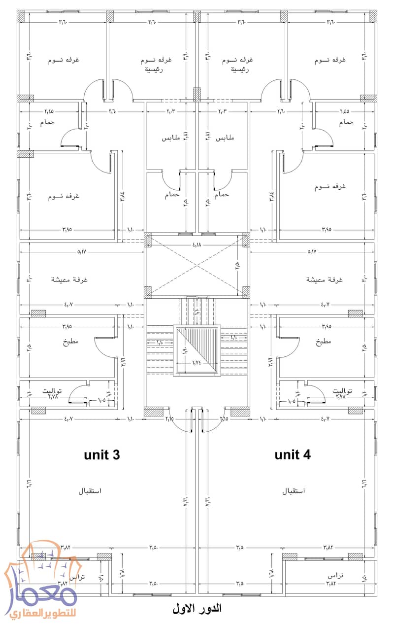
شقة 211 م في الحي الرابع بيت الوطن- بالتقسيط بالقرب من النادي الاهلي- القاهرة الجديدة
شقة 211م في الحي الرابع - بيت الوطن ، التجمع الخامس علي الشارع الرئيسي وبالقرب من النادي الاهلي السعر الاجمالي: 5,425,000 مقدم 25% والباقي علي 54 شهر
معلومات عن العقار
- نوع العقارشقة
- نوع العرضللبيع
- الرقم المرجعيبيوت - Mustafa-Baitwatan-146
- حالة البناءقيد الإنشاء
- التأثيثغير المفروشة
- نُشِر في18 يناير 2026
- الملكية العقاريةأول سكن
البحث الشائع
الموقع والأماكن القريبة
الموقع
المؤسسات التعليمية
المطاعم
المستشفيات
المتنزهات







