
Off-Plan



10
Best price apartment in mostaqbl City
mostakbl city
Haptown Hassan allam
phase park 226
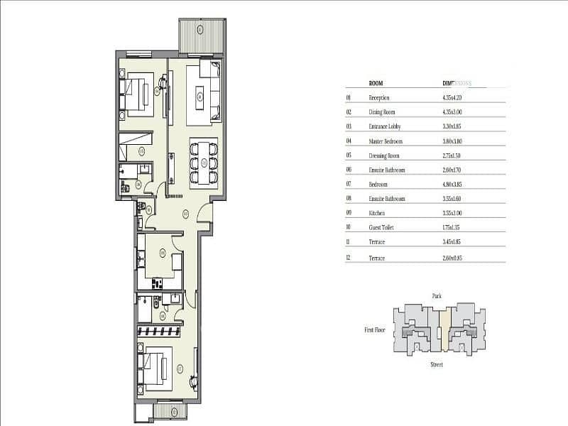
165 sqm
First floor
2bed
3bath
Double view
Delivery 2027
asking dp 3,400,000
rem 7,480,000
-----------------------------------------------------------------------------------------------
HAPTown, developed by Hassan Allam Properties, is one of the most prestigious and modern residential projects in East Cairo. Located in Mostakbal City on the vital Mohamed Bin Zayed Axis, which connects East Cairo with the New Administrative Capital, it enjoys a unique strategic location close to key areas and modern landmarks such as the New Administrative Capital, Al-Fattah Al-Aleem Mosque, and Madinaty. Spanning a vast area of approximately 243 acres, the project offers a balanced distribution of green spaces, residential buildings, and service facilities.
HAPTown boasts a contemporary architectural design, developed in collaboration with leading international design firms such as CallisonRTKL and Alchemy. This is evident in the diverse unit styles and intelligent layouts that prioritize privacy and natural views. The project offers a wide range of units, including apartments, duplexes, villas, townhouses, and twin houses, with sizes starting from approximately 93 square meters to suit the needs of various families and individuals.
The project features a comprehensive infrastructure of services and amenities, ensuring residents enjoy a comfortable and integrated living experience. Green spaces abound throughout the project, with over 7.5 kilometers of extensive walking and cycling paths, creating a healthy and tranquil environment. The project also features a fully integrated retail area spanning approximately 24,000 square meters, housing upscale shops, restaurants, and cafes, as well as a 49,000-square-meter business and administrative area offering modern office spaces to meet the needs of companies and entrepreneurs. In addition, there is a comprehensive sports club with courts, swimming pools, and recreational
Haptown Hassan allam
phase park 226
165 sqm
First floor
2bed
3bath
Double view
Delivery 2027
asking dp 3,400,000
rem 7,480,000
-----------------------------------------------------------------------------------------------
HAPTown, developed by Hassan Allam Properties, is one of the most prestigious and modern residential projects in East Cairo. Located in Mostakbal City on the vital Mohamed Bin Zayed Axis, which connects East Cairo with the New Administrative Capital, it enjoys a unique strategic location close to key areas and modern landmarks such as the New Administrative Capital, Al-Fattah Al-Aleem Mosque, and Madinaty. Spanning a vast area of approximately 243 acres, the project offers a balanced distribution of green spaces, residential buildings, and service facilities.
HAPTown boasts a contemporary architectural design, developed in collaboration with leading international design firms such as CallisonRTKL and Alchemy. This is evident in the diverse unit styles and intelligent layouts that prioritize privacy and natural views. The project offers a wide range of units, including apartments, duplexes, villas, townhouses, and twin houses, with sizes starting from approximately 93 square meters to suit the needs of various families and individuals.
The project features a comprehensive infrastructure of services and amenities, ensuring residents enjoy a comfortable and integrated living experience. Green spaces abound throughout the project, with over 7.5 kilometers of extensive walking and cycling paths, creating a healthy and tranquil environment. The project also features a fully integrated retail area spanning approximately 24,000 square meters, housing upscale shops, restaurants, and cafes, as well as a 49,000-square-meter business and administrative area offering modern office spaces to meet the needs of companies and entrepreneurs. In addition, there is a comprehensive sports club with courts, swimming pools, and recreational
Property Information
- TypeApartment
- PurposeFor Sale
- Reference no.Bayut - 5001186-YjMmlI
- CompletionOff-Plan
- FurnishingUnfurnished
- Published at8 December 2025
- OwnershipResale
Features / Amenities
Swimming Pool
Jacuzzi
Sauna
Steam Room
+ 12 more amenities
Trends
Location & Nearby
Location
Schools
Restaurants
Hospitals
Parks













