HomeApartments for Sale in CairoApartments for Sale in New CairoApartments for Sale in 5th SettlementApartments for Sale in Beit Al WatanBayut - mostafafaragbaitwatan114u10196m


Off-Plan






6
Down payment: EGP 1,515,000
Beit Al Watan, 5th Settlement, New Cairo, Cairo
3 Beds
3 Baths
196 Sq. M.
apartment for sale 196m beit al watan 5th settlement new caio
apartment for sale new cairo
5th settlement beit al watan
details
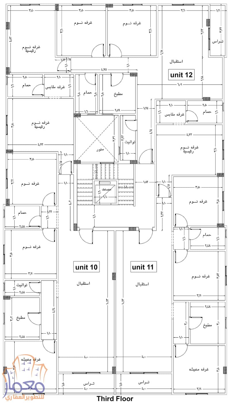
area 196m
third floor
3 bedrooms, 3 bathrooms, receptiom, kitchen, terrace
delivery date 2026
price
total price 5050000EGP
downpayment 30%
installments over 48 months
contact
5th settlement beit al watan
details
area 196m
third floor
3 bedrooms, 3 bathrooms, receptiom, kitchen, terrace
delivery date 2026
price
total price 5050000EGP
downpayment 30%
installments over 48 months
contact
Property Information
- TypeApartment
- PurposeFor Sale
- Reference no.Bayut - mostafafaragbaitwatan114u10196m
- CompletionOff-Plan
- Published at29 January 2026
- OwnershipPrimary
Features / Amenities
Balcony or Terrace
Covered parking
Pets Allowed
Electricity Meter
+ 4 more amenities
Trends
Location & Nearby
Location
Schools
Restaurants
Hospitals
Parks








